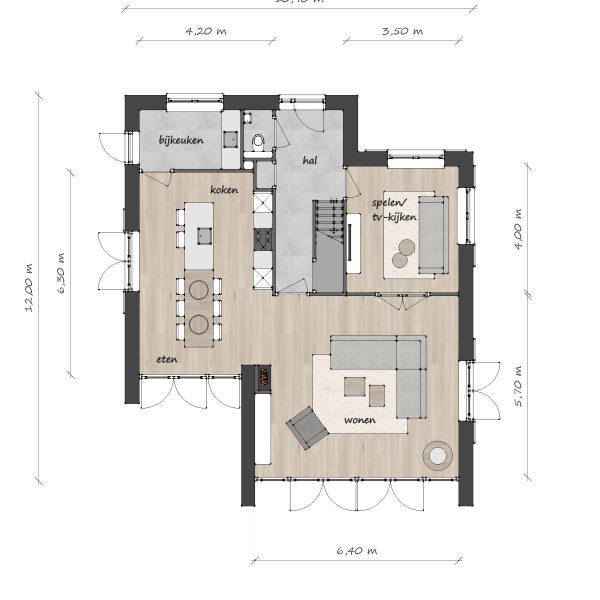
Dit villa ontwerp is opgebouwd uit twee gelijke massa’s met ieder een eigen kap, die verspringend in elkaar geschoven zijn. Dit geeft het huis een spannende basisvorm die van elke kant van het huis anders is. Het ontwerp heeft een frisse witte gevel gecombineerd met contrasterende grijze ramen, zwarte houten delen en een grijze dakpan. Het huis heeft van binnen een open en lichte sfeer en is een echt functioneel familiehuis. De woonruimtes op de begane grond verspringen ten opzichte van elkaar wat de ruimtes hun eigen identiteit geeft. De verdieping is opgebouwd uit vier ruime slaapkamers, één of twee badkamers, ruimte voor berging en als verrassing een ruime zolderverdieping.



















