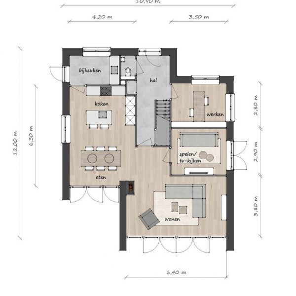
Deze villa met glazen achterpui en rieten kap is opgebouwd uit twee gelijke massa’s met ieder een eigen kap, die verspringend in elkaar geschoven zijn. Dit geeft het huis een spannende basisvorm die van elke kant van het huis anders is. Het huis heeft een modern landelijke uitstraling met een rieten kap, een strakke glazen achtergevel en witte gevels die gedeeltelijk zijn voorzien van zwart hout. Het huis heeft van binnen een open en lichte sfeer en is een echt functioneel familiehuis. De woonruimtes op de begane grond verspringen ten opzichte van elkaar wat de ruimtes hun eigen identiteit geeft. De verdieping is opgebouwd uit vier ruime slaapkamers, één of twee badkamers, ruimte voor berging en als verrassing een ruime zolderverdieping.



















