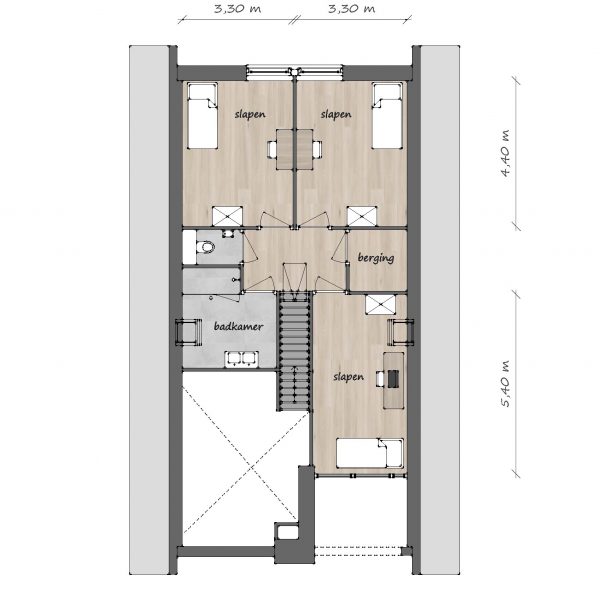
Dit schuurwoning ontwerp heeft een langwerpige basisvorm uitgevoerd in een frisse witte kleur in combinatie met stoer hout. De achtergevel wordt gekenmerkt door een grote glaspartij omringt door warme materialen. De indeling is licht en speels te noemen met een trap als eyecatcher in de woonkamer. De woonruimtes zijn open tot in de nok en geven een doorkijk van de verdieping naar de woonkamer. Door de mogelijkheid om op de begane grond een ruime slaapkamer met badkamer te realiseren is dit type heel geschikt als levensloop bestendig huis. Op de verdieping is ruimte voor twee of drie ruime slaapkamers of een werkplek en een badkamer.



















