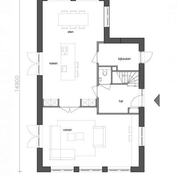
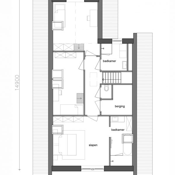
Dit moderne ontwerp van rode baksteen en riet heeft een stoer uiterlijk gekregen door stoere grijze strakke ramen en deuren en door een moderne zwarte nok op het riet. De rode baksteen contrasteert mooi met het grijs van de kozijnen en het riet van de kap. De kleinere massa aan de achterkant van het huis breekt het ontwerp en maakt het wat zachter.


























