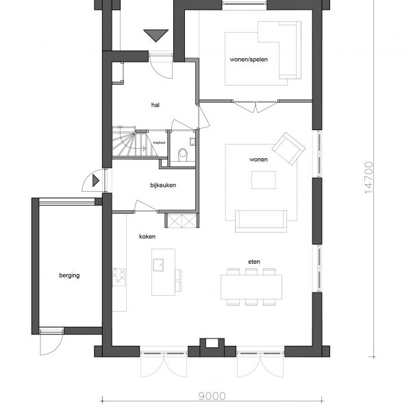
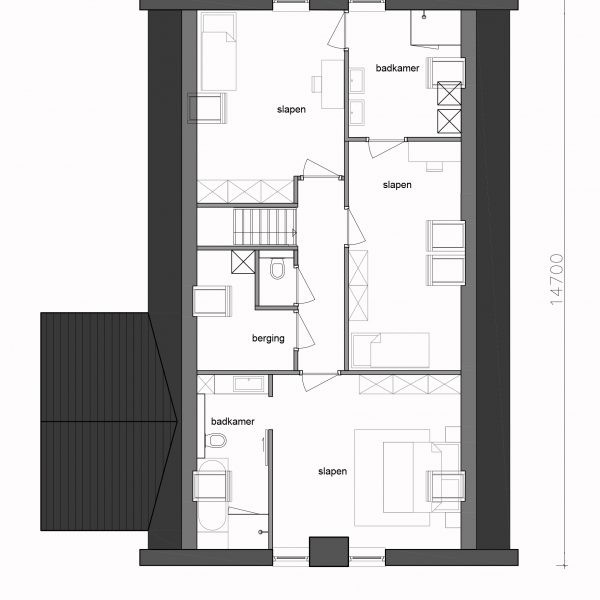
Dit moderne ontwerp inĀ een nieuwbouw wijk in Abcoude hebben we voor een gezellig gezin gemaakt. Het bestemmingsplan en de welstand stelde strikte eisen voor de nieuwbouw in deze wijk. Het huis maakt een knipoog naar een oud-Hollands woningtype maar is in een modern strak jasje gegoten. De modern uitgevoerde louvre-luiken geven een eigentijds beeld aan het huis maar zorgen ook voor een warme uitstraling.
























