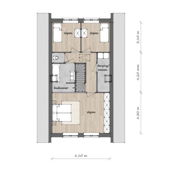
Kleine Kaap is een traditioneel vormgegeven huis met een zadeldak en heeft lekker veel lichtinval door de grote raampartijen aan alle zijde van het huis. Kleine Kaap A is traditioneel uitgevoerd met een rode baksteen, sfeervolle luiken en een roedeverdeling in de ramen. De indeling van de Kleine Kaap is minder traditioneel door de plaatsing van de trap in de lengterichting van het huis. Hierdoor zijn de ruimtes rondom deze trap flexibel in te delen en worden de ruimtes wat spannender. Op de verdieping is ruimte voor drie slaapkamers en één of twee badkamers.

















